Waschhaus Birrwil
Umbau Waschhaus zur Villa Wilhof
Seetalstrasse 2, 5708 Birrwil
Das Waschhausgebäude Spielt im Ensemble mit dem Ensemble "Villa Wilhof"
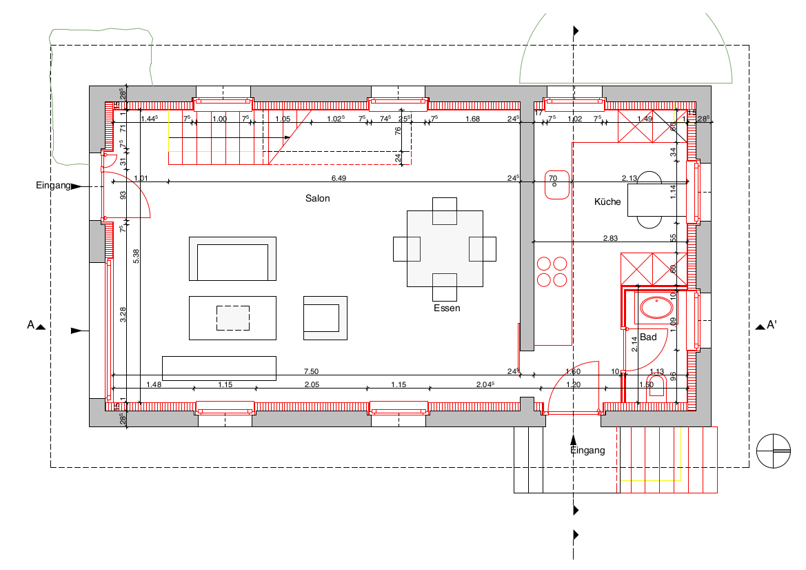
Ziel des Umbaus ist es, dieses Gebäude aktiv zu nutzen und zu einer Wohnung für eine bis zwei Personen auszubauen. Die bestehenden Qualitäten sollen für den neuen Wohnraum genutzt und gezielt in Szene gesetzt werden.
Von der Materialisierung ist eine einfachere Ausführung als bei der Villa gewünscht und auch passend. Es sind wertige und langlebige Materialien zu verwenden.
Im Wohnraum ist ein Ofen gewünscht, der auch zum Beheizen des Gebäudes dienen kann.
Offensichtliche Schwachstellen beim bestehenden Gebäude sind die Fundation vor allem auf der Nordseite. Das Dach wurde nach einem Schaden verstärkt und Fachgerecht instand gestellt.
Zusätzlicher Kellerraum für Gartengeräte und Technik sind notwendig.
Die Haustechnik ist komplett neu zu erschliessen. Ev. kann bei der bestehenden Heizung vom Villagebäude mit einer Fernwärmeleitung angeschlossen werden. Hierzu müssen weitere Abklärungen getroffen werden.
